Op til 3 måneders lejefrihed - Flotte og indbydende kontorlejemål fra 108 - 326 m²
Fantastisk beliggende i et højt profileret område
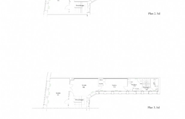
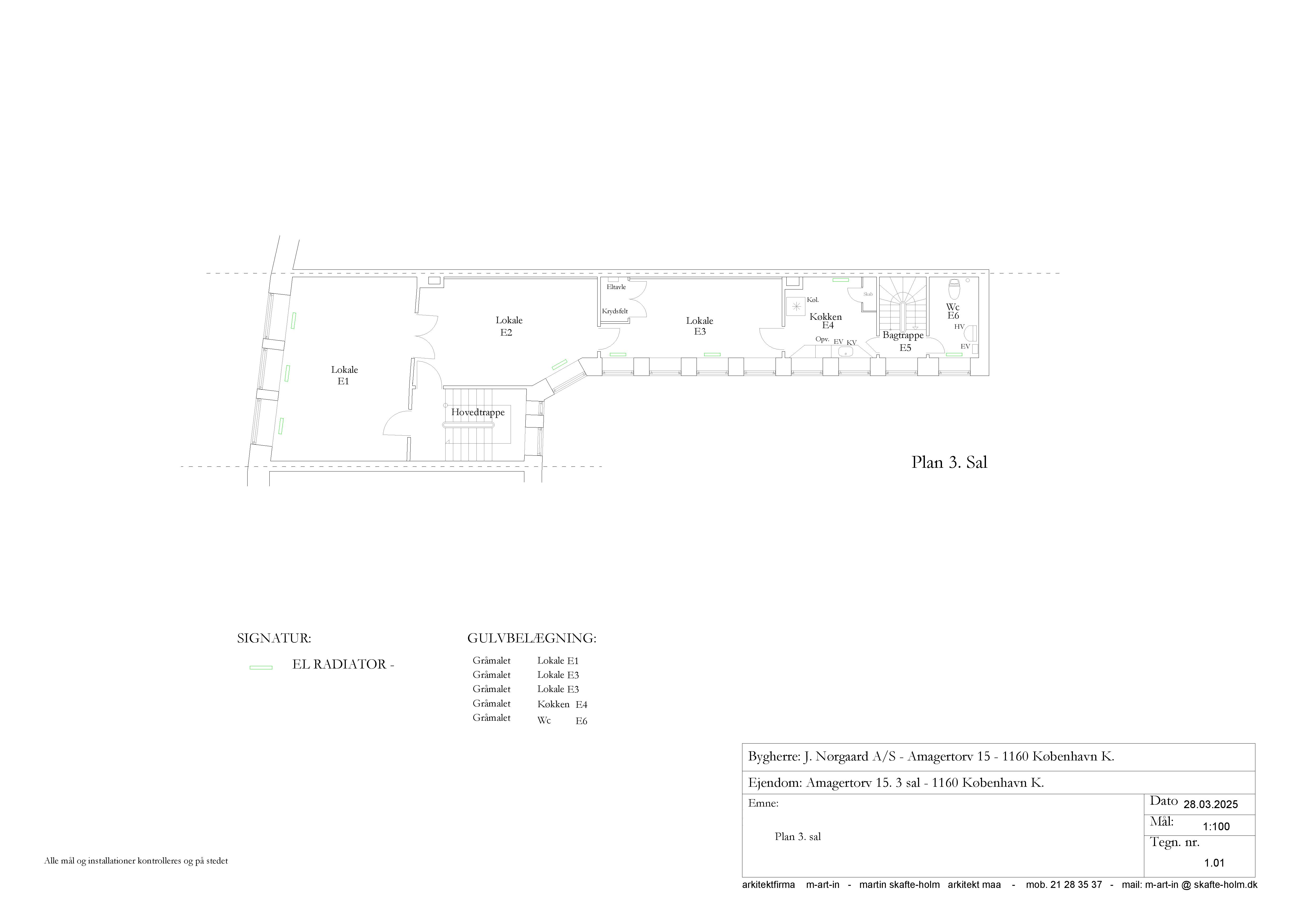
Nu udlejes særdeles godt beliggende kontorlejemål på henholdsvis 109 m² (2. sal), 109 m² (3. sal) og 108 m² (4. sal og øverst som Penthouse) eller i alt på 326 m², med en fantastisk udsigt til bl.a. Strøget, Storkespringvandet, Illum, Louis Vuitton m.fl.
Kontorlejemålene kan lejes særskilt eller samlet, og er beliggende fra 2. sal til 4. sal i en flot og mondæn ejendom, der er ejet af familien Nørgaard på Strøget. Når man træder ind i opgangen direkte fra Strøget, kan man med det samme fornemme, at der er kælet for detaljerne og ikke overladt noget til tilfældighederne. Kontorlejemålene er alle nyistandsat og malet af udlejer inden indflytning, således at lejerne kan ibrugtage lokalerne straks.
Få minutter fra Amagertorv, er metrolinjerne M3 og M4 placeret på Gammel Strand tæt ved Højbro Plads og metrolinjerne M1, M2, M3 og M4 er alle beliggende få minutter til Kongens Nytorv, så det er nemt at komme til og fra området uden de store problemer. I området findes der også gode parkeringsmuligheder i nogle af de større parkeringshuse, hvor der bl.a. kan tilbydes parkering i et større parkeringshus i Adelgade til kr. 2.400 pr. måned ekskl. moms. Parkering aftales på separat abonnementsaftale.
Området omkring Amagertorv, oplever et meget højt antal fodgængere i løbet af ugen og på de travleste dage, er dette tal ca. 5.000 forbipasserende i timen, hvilket er med til at gøre området til et af de mest interessante og eftertragtede i Danmark. Her ligger mange højprofilerede og kendte high end koncepter og varemærker, såsom Louis Vuitton, Prada,
Guchi, Moncler, Burberry, Mads Nørgaard m.fl. Af de nærmeste større naboer er Illum, Illums Bolighus, Royal Copenhagen, Georg Jensen, Café Europa m.fl.
Kontakt Kraer erhvervsmægler for nærmere information på tlf. 33 11 25 11.