Ingen binding - Flot, lyst og indbydende kontor på 236 m² med egen indgang
Nyistandsættes til ny lejer - Tæt ved Jorcks Passage og kort afstand til Metroen ved Gl. Strand og Rådhuspladsen
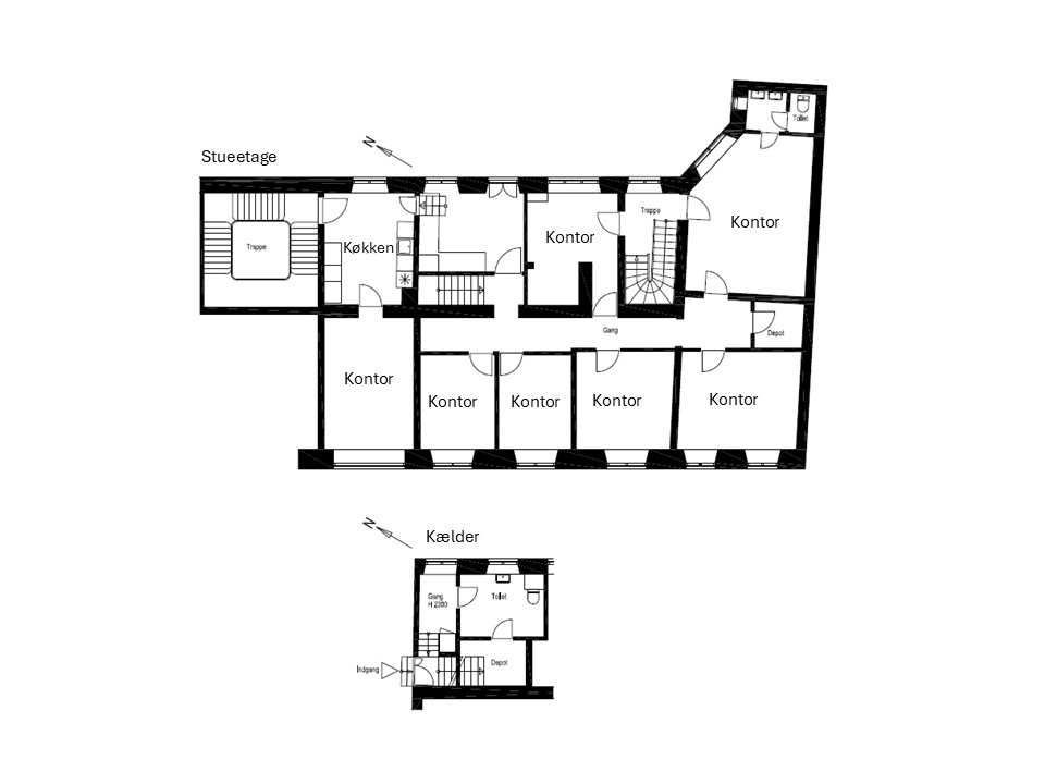
Til overtagelse efter nærmere aftale udlejes dette flotte og indbydende kontorlejemål på 236 m².
Lejemålet har egen indgang i porten, men adgang til lejemålet kan ligeledes ske via præsentabel og charmerende fælles opgang.
Lejemålet har en praktisk fordelingsgang, som giver adgang til 6 separate kontorer i forskellige størrelser. Derudover indeholder lejemålet reception/ venteværelse, køkken og personalerum/ spiserum i forbindelse med køkkenet. Køkken og personalerum/ spiserum er beliggende over porten, hvor loftshøjden er lavere, hvorfor rummene ikke er godkendt til arbejdspladser. Lejemålet indeholder ligeledes 2 toiletter samt mindre depotrum.
Lejemålet er beliggende centralt på en sidegade til Strøget tæt ved Jorcks Passage. Her er en dejlig central placering med kort afstand til offentlig transport, caféer mv.
Eventuel mulighed for momsfritagelse efter nærmere aftale om tillæg herfor.
Kontakt Kraer erhvervsmægler for nærmere information på tlf. 33 11 25 11.
Afstande:

Bus: 0,3 km.

S-tog: 0,7 km.

Metro: 0,4 km.

Motorvej: 6,0 km.