3 lejemål til lager, showroom, behandling, kontor m.m. Biladgang til lager –Skiltemulighed mod Grønnevej
3 lejemål hhv. 100 m² i lager-bygning, 101 m² i mellembygning og 122 m² i den forreste villa
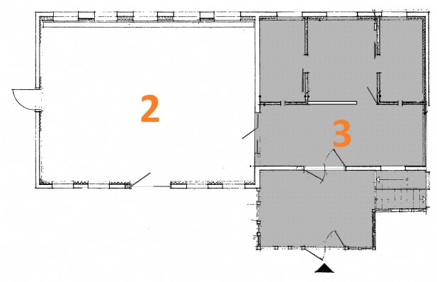
Central i Virum i mindre erhvervskvarter udbydes nu 3 ledige lejemål i samme ejendom, med flere anvendelsesmuligheder - velegnet til lager/opbevaring, behandling, handels- og servicevirksomheder. Lejemålene er sammenbygget og kan både lejes samlet og hver for sig.
LEJEMÅL 2 er en mindre lagerhal på 101 m² i ét stort rum med flere vinduer, godt lysindfald, et mindre te-køkken og en stor dobbelt dør der giver adgang til f.eks. biler.
- Leje: kr. 9.950 pr. måned inkl. drift, men ekskl. forbrug
LEJEMÅL 3 er sammenhængende med LEJEMÅL 2 og indeholder flere kontorer og depotrum, adgangs- og gangareal, samt aflåst hovedindgang via et vindfang der deles med LEJEMÅL4. Herunder er der også adgang til toilet.
- Leje: kr. 9.850 pr. måned inkl. drift, men ekskl. forbrug
LEJEMÅL 4 deler hovedindgang via vindfang med LEJEMÅL 3 og indeholder flere kontorer/ showroom, depotrum, køkken og nyt toilet i den høje stueetage samt gode depotrum, toilet og bad i den høje kælder.
- Leje: kr. 13.550 pr. måned inkl. drift, men ekskl. forbrug
Alle lejemål kan både lejes samlet og hver for sig.
Beliggenheden mod Grønnevej giver god mulighed for skiltning på fælles pylon placeret mod vejen.
Der er kort afstand til såvel Lyngbyvejen, som Helsingørmotorvejen, og både Virum og Sorgenfri S-stationer er i gå-afstand.
Kontakt Kraer erhvervsmægler for nærmere information på tlf. 33 11 25 11.
Afstande:

Bus: 0,2 km.

S-tog: 0,9 km.