Penthouse lejemål på 157 m² - Privat tagterrasse og elevator
Fantastisk penthouse lejemål i Müllers palæ - eksklusivt beliggende i hjertet af Frederiksberg
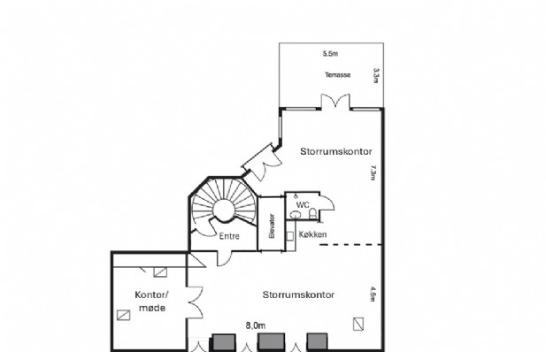
Sjældent udbudt lejemål på toppen af Frederiksberg. Fra ejendommens flotte og præsentable indgangsparti tilgås lejemålet enten via elevator eller en smuk rustik spindeltrappe.
Lejemålet indeholder 157 m² og elevatoren åbner direkte ind i lejemålet. Herfra mødes man af en rummelig og åben planløsning, hvor der mod Allégade er 3 franske altaner og hvor facaden mod Frederiksberg Have består af store vinduespartier og udgang til en privat tagterrasse. Herfra har man en skøn udsigt over Frederiksberg Have, samt tårnene i Carlsberg Byen. Derudover indeholder lejemålet et flot toilet, pænt tekøkken samt et aflukket kontor/ mødelokale.
Fra elevatoren er der desuden adgang til ejendommens fælles tagterrasse, som har en fantastisk udsigt over Frederiksberg og København.
Bemærk at der ligeledes er mulighed for at leje 312 m² på 1.sal med privat gårdhave og 100 m² i stueplan med egen indgang. De 3 lejemål der lediggøres er væsentlig forskellige i beliggenhed, størrelse og indretning, og udlejes både samlet og hver for sig.
Særdeles attraktiv beliggenhed tilbagetrukket fra Allégade, skærmet fra vejen af de høje træer og den hyggelige park, der strækker sig fra Frederiksberg Rådhus til indgangen til Frederiksberg Have. Fra ejendommen er der kun 150 meter til indgangen til Frederiksberg Have, 600 meter til Frederiksberg Centeret med Frederiksberg Metro og 700 meter til Frederiksberg Allé Metro.
Kontakt Kraer erhvervsmægler for nærmere information på tlf. 33 11 25 11.
Afstande:

Bus: 0,0 km.

Metro: 0,6 km.