INGEN BINDING - Lækkert og gennemgribende nyistandsat kontorlejemål på 192 m²
Særdeles repræsentativt og centralt beliggende i hjertet af København K - Elevator
Beliggende i hjertet af København K - blot få minutters gang fra Rådhuspladsens Metrostation og med nem adgang til flere p-huse i området – ideelt for både medarbejdere og besøgende.
Lejemålet er netop blevet gennemgribende nyistandsat og fremstår i en særdeles flot, indbydende og indflytningsklart stand med bl.a.:
- Eksklusive og slidstærke LVT-gulve
- Nyt, stilrent køkken
- Nyt, moderne toilet
- Nye lofter med integreret LED-belysning
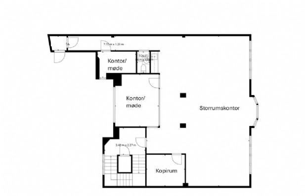
Indretningen er både funktionel og fleksibel og indeholder stort storrumskontor med smuk karnap og kig til Vestergade, to mødelokaler - heraf det ene med elegante glasvægge samt serverrum/depot og toilet
Lejemålet egner sig perfekt til virksomheder, der ønsker en central placering, god infrastruktur og et inspirerende arbejdsmiljø i præsentable omgivelser.
Dette kontor skal opleves!
Kontakt Kraer erhvervsmægler for nærmere information på tlf. 33 11 25 11.
Afstande:

Bus: 0,3 km.

Tog: 0,7 km.

S-tog: 0,7 km.

Metro: 0,3 km.