Regulært lager og kontor på 296 m² - Egen indgang og fleksible indretningsmuligheder
Gode parkeringsforhold, tæt på Kokkedal Station og mulighed for hurtig overtagelse
Til overtagelse snarest muligt udlejes 296 m² regulært lager og kontor beliggende i rolige omgivelser i velordnet ejendom med en domicil følelse, da man som den eneste lejer benytter trappetårnet i gavlen.
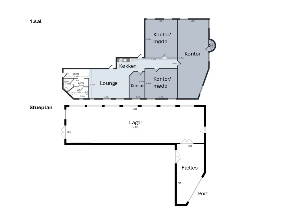
Lejemålet indeholder samlet 296 m² fordelt på 100 m² lager i stueplan og 196 m² kontor på 1.sal.
Lageret i stueplan tilgås via port med niveau fri adgang. Herfra er der et fælles portrum/ fordelingsrum, som giver adgang til dette lager, samt naboens lager. Selve lagerrummet er meget regulært og har vinduer langs hele den ene side. Lagerrummet kan ligeledes tilgås fra trappetårnet i gavlen, som man er den eneste lejer der benytter.
Kontoret på ejendommens 1. sal er i dag indrettet med 3 kontorer i varierende størrelser, storrumskontor med godt lysindfald fra 3 sider, lounge/ alrum, tekøkken samt to toiletter.
Alle vægge i kontoret er lette og vil kunne indrettes efter aftale - udlejer er således indstillet på at imødekomme rimelige ønsker til ombygning.
Der er mulighed for egne private parkeringspladser i forbindelse med indgangen.
Ejendommen er beliggende i populært erhvervskvarter med let adgang til Helsingørmotorvejen. Derudover kort afstand til Kokkedal Station.
Kontakt Kraer erhvervsmægler for nærmere information på tlf. 33 11 25 11.
Afstande:

Bus: 0,3 km.

Tog: 1,0 km.

Motorvej: 1,5 km.