Flot og indbydende kontor/showroom på 387 m² - Eventuelt mulighed for at leje møbleret
Særdeles flot og velordnet ejendom - virkelig gode parkeringsforhold
Meget flot og indbydende kontor/showroom på ca. 387 m² i en af områdets pæneste og mest velordnede ejendomme.
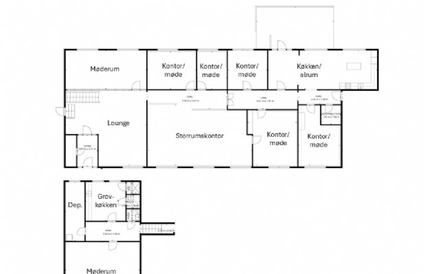
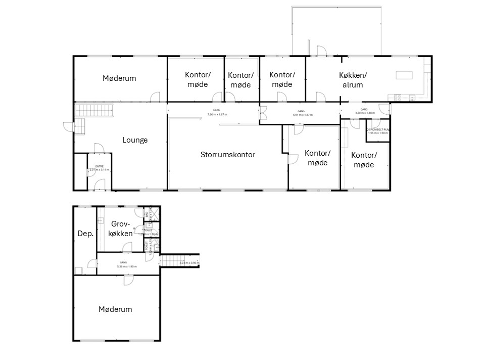
Lejemålet er indrettet med 300 m² kontor i stueplan og 87 m² kælder. Alt fremstår i en særdeles flot kvalitet, hvor alt blev gennemgribende istandsat for nogle år siden. Stueetagen er indrettet med stor reception/ lounge med glasvægge mod stort møderum/ konferencerum. Fra reception/ lounge området er der nedgang til underetagen, samt adgang til lejemålets kontorafsnit, som indeholder storrumskontor, 5 kontorer/ mødelokaler af varierende størrelser, samt stort køkken/ kantine med spiseplads og udgang til terrasse. Underetagen er indrettet med stort møderum, grovkøkken, 2 toiletter, bad samt depot.
Lejemålet kan eventuelt lejes møbleret efter nærmere aftale, hvilket bl.a. omfatter loungemøbler, mødeborde og stole, 16-18 skriveborde inkl. stole, borde og stole i kantine/køkken samt diverse reoler mv.
Ejendommen fremtræder yderst repræsentativ og velholdt, hvilket ligeledes gør sig gældende for udenomsarealerne. Her er nyere asfalt belægning ved bygningen, hvor der ligeledes er rigelig med parkeringspladser med ladestandere. Derudover findes der et større asfalteret parkeringsareal på "højen", hvor den omkringliggende have er beplantet med en mindre frugtplantage.
Attraktivt erhvervskvarter med kun 1,3 km. til Birkerød Station, hvor S-togslinje A kører mod Hillerød og Hundige/ Køge via Københavns Hovedbanegård. I forlængelse af stationen finder man Birkerød Hovedgade, med caféer og shopping muligheder. Derudover let adgang til Hillerødmotorvejen, som ligger ca. 3 km. fra lejemålet.
Kontakt Kraer erhvervsmægler for nærmere information på tlf. 33 11 25 11.
Afstande:

Bus: 0,3 km.

S-tog: 1,3 km.

Motorvej: 3,0 km.