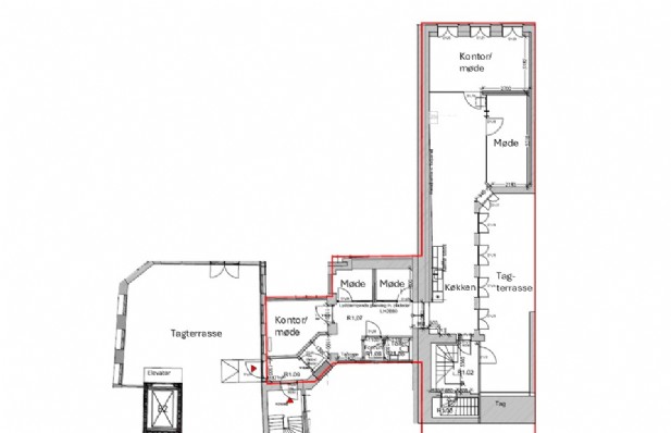
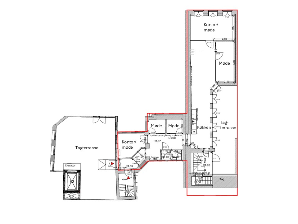
INGEN BINDING - Flot og indbydende kontorlejemål på 152 m²
Adgang til flere tagterrasser - mulighed for hurtig overtagelse
Særdeles centralt beliggende - tæt ved Rådhuspladsen og Gammeltorv/Nytorv. Med denne placering befinder du dig lige midt i byens pulserende liv med ca. 200 meter til nærmeste Metrostation samt gå afstand til Nørreport Station og Hovedbanegården.
Adgang til lejemålet sker fra Mikkel Bryggers Gade, hvor man via port ankommer til gårdrum med elevator og trappe til tagterrassen i 1. sals højde, hvorfra lejemålet tilgås.
Lejemålet indeholder kontor/møderum med store vinduespartier mod Frederiksberggade, storrum i åben forbindelse med køkken med døre mod tagterrassen, 3-5 kontorer/ møderum alt efter behov samt toilet.
Overalt fremtræder lejemålet meget lyst, indbydende og klar til ny lejer.
Kontakt Kraer erhvervsmægler for nærmere information på tlf. 33 11 25 11.
Afstande:

Bus: 0,3 km.

Tog: 0,7 km.

S-tog: 0,7 km.

Metro: 0,2 km.