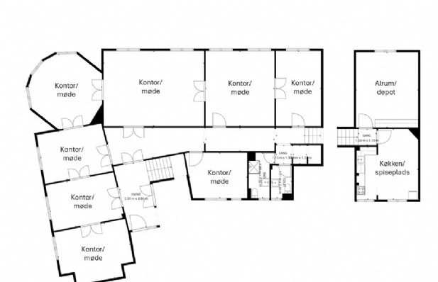
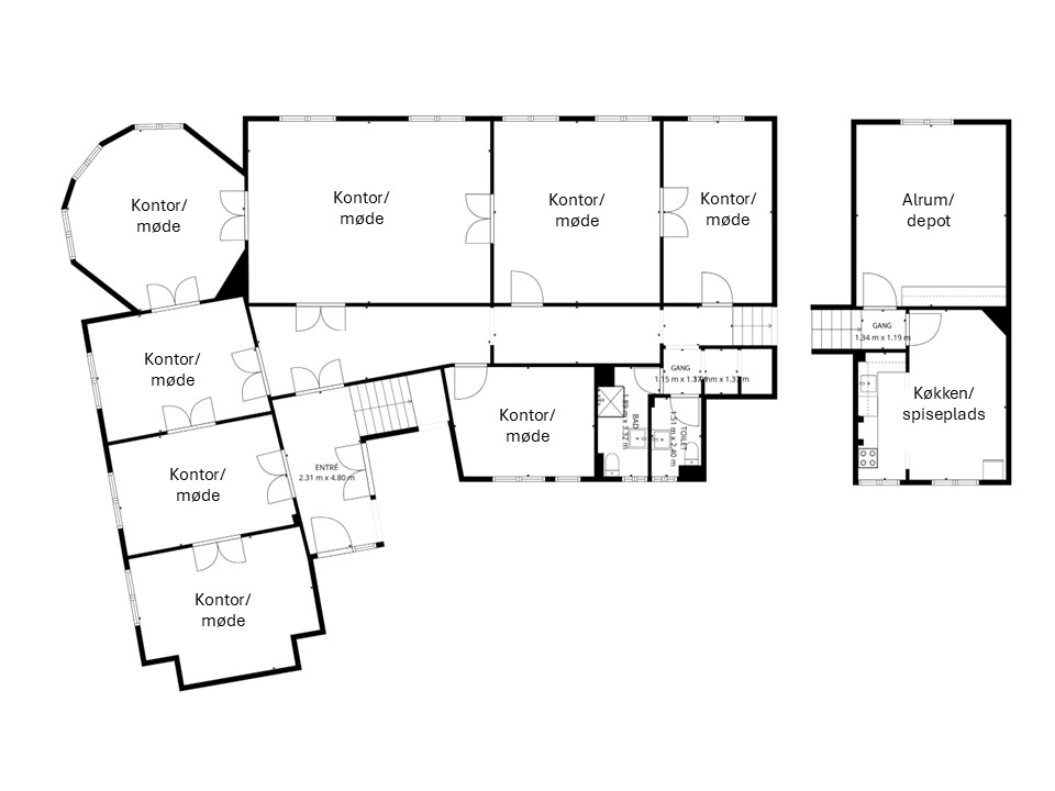
Smukt og yderst herskabeligt hjørnekontor på 322 m²
Høj stueetage med smuk udsigt over Ørstedsparken og næsten 4 meter til loftet - elevator
Sjældent udbudt hjørnelejemål i en fantastisk smuk og klassisk stil. Ankomst til lejemålet sker via smukt portrum med flotte marmorsøjler. Herfra adgang til flot bred opgang med massive døre med smukke udskæringer samt elevator.
Inden ny lejer overtager bliver lejemålet nymalet, de gamle gulve bliver istandsat eller udskiftet og køkken/ toilet bliver opgraderet.
Lejemålet indeholder hele 7 stuer en suite, som alle har høje paneler, stuk og smukke massive originale døre. Det buede hjørnekontor har en skøn udsigt over Ørstedsparken og livet på gaden. De fantastik flotte udskæringer over dørene understreger lejemålets helt særlige eksklusive oprindelse og generelt er de flotte detaljer bevaret overalt.
Udover de 7 stuer en suite indeholder lejemålet kontor mod gården, rummeligt køkken med spiseplads, depotrum over porten samt 2 toiletter, hvoraf det ene ligeledes har brus.
En fantastisk beliggenhed på Nørre Farimagsgade med kun 500 meter til Nørreport såvel som Vesterport Station.
Desuden gode parkeringsforhold foran ejendommen, samt parkeringshuset på Israels Plads og flere parkeringshuse i Nyropsgade indenfor få hundrede meter. Hyggeligt kvarter med alt fra alt fra caféer, gallerier, værksteder, antikvariater mm. på Nørre Farimagsgade og de omkringliggende gader.
Kontakt Kraer erhvervsmægler for nærmere information på tlf. 33 11 25 11.
Afstande:

Bus: 0,2 km.

Tog: 0,5 km.

S-tog: 0,5 km.

Metro: 0,5 km.