INGEN BINDING - Lyst og indbyde kontor på 117 m² med adgang til kæmpe terrasse
Lyst og charmerende lejemål med blotlagte bjælker - roligt beliggende i baghus
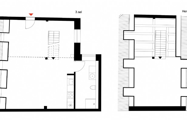
Meget lyst og indbydende kontor på 117 m² kontor midt i Københavns centrum udlejes.
Som lejer har man adgang til kæmpe stor fælles tagterrasse.
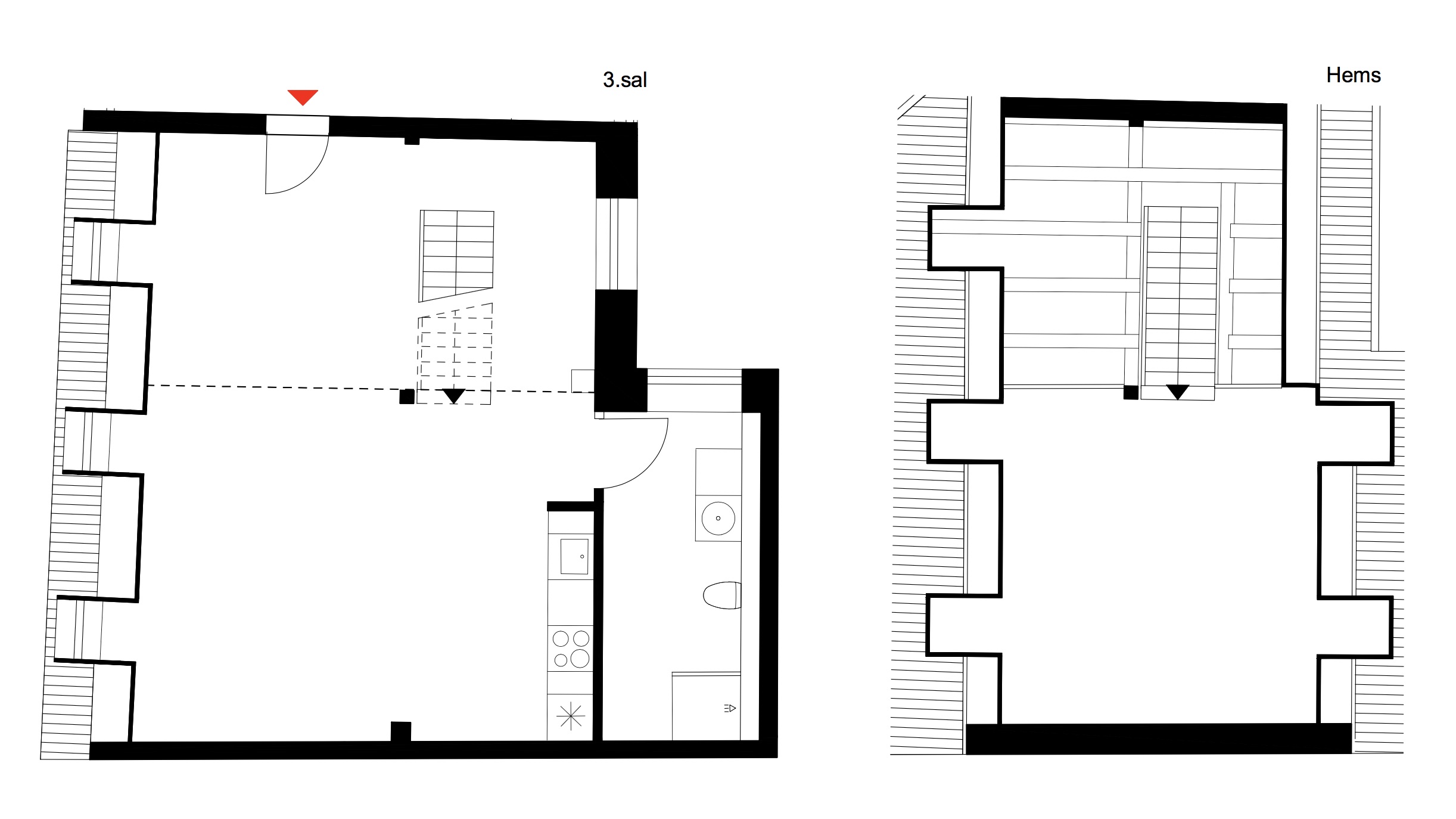
Lejemålet er beliggende på 3. sal og har en stor og højloftet hems med masser af dagslys, hvor der er plads til yderligere ca. 4 arbejdspladser. Der er i lejemålet pænt køkken i hvide elementer med komfur, frys, køleskab samt et toilet med bad.
Alt fremstår flot og indbydende og der er et skønt lysindfald fra de mange vinduespartier, hvilket bidrager til et godt arbejdsmiljø. Dette lejemål egner sig perfekt til den mindre og kreative virksomhed, der ønsker en central beliggende i charmerende og smukke rammer.
Ejendommen er beliggende på en af de bedre adresser i Indre By tæt på Kongens Have og byens absolutte centrum. Kronprinsensgade er en del af det gamle Købmager Kvarter i Indre by, og er i dag et af de mest populære områder for anerkendte butiks brands og restaurationer. Ejendommen ligger nær offentlig transport ved Nørreport, Kongens Nytorv og Gl. Strand.
Lad os fremvise dette meget fine lejemål for dig.
Kontakt Kraer erhvervsmægler for nærmere information på tlf. 33 11 25 11.
Afstande:

Bus: 0,2 km.

Tog: 0,6 km.

S-tog: 0,6 km.

Metro: 0,4 km.

Motorvej: 5,0 km.