312 m² Kreativt kontor/showroom med industrielt præg
Centralt beliggende på Vesterbro midt mellem Værnedamsvej og Vesterbro Torv
Inspirerende og alsidigt erhvervslejemål med en central og attraktiv beliggenhed. Oplagt til eksempelvis kreativt kontor eller showroom. Med efterspurgt placering midt på Vesterbro – mellem Værnedamsvej og Vesterbro Torv – og omgivet af et levende bymiljø med et rigt udvalg af caféer, restauranter, specialbutikker og dagligliv.
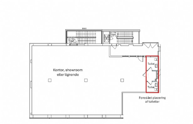
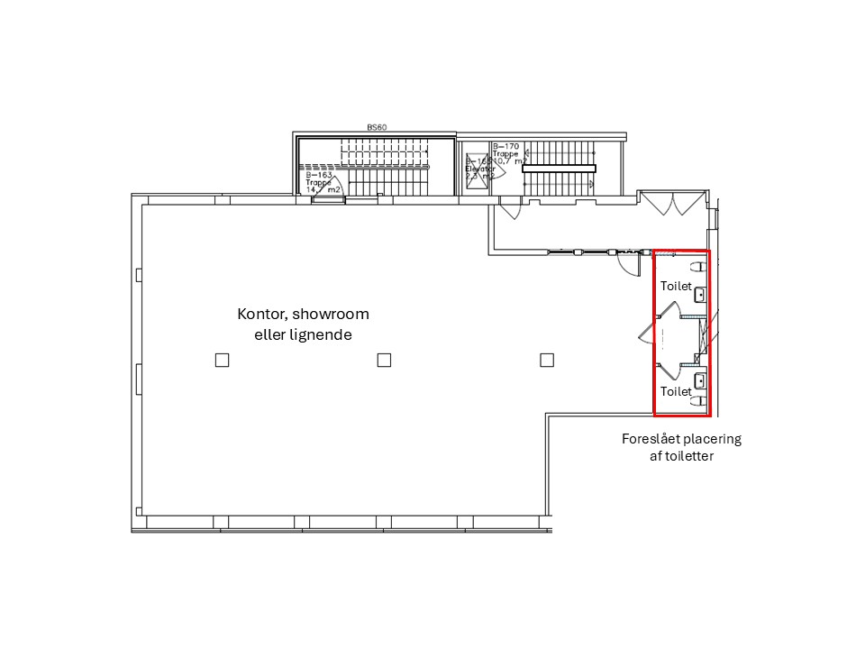
Lejemålet fremstår som ét stort, åbent og indbydende rum med flotte, rustikke gulve og en imponerende loftshøjde, der skaber en lys og rummelig atmosfære. De åbne rammer giver særdeles fleksible indretningsmuligheder og gør lejemålet ideelt til både kreative arbejdspladser, showroom, atelier eller kombineret kontor og lager. I dag er der etableret et mindre, disponibelt rum med lette vægge ved trappeopgangen, som nemt kan fjernes eller indgå i en ny indretning.
Der er i øjeblikket adgang til toilet i kælderen, men udlejer tilbyder – efter nærmere aftale – at etablere toiletforhold direkte i lejemålet, som angivet på plantegningen.
Beliggenheden er særdeles attraktiv med kort afstand til offentlig transport. Busforbindelser findes blot ca. 150 meter fra lejemålet, metrostationen ved Enghave Plads ligger ca. 700 meter væk, og Københavns Hovedbanegård nås på ca. 900 meter.
Her får du et karakterfuldt og centralt beliggende lejemål med højt til loftet – både fysisk og kreativt – samt rigtig gode muligheder for at skabe et unikt og funktionelt erhvervsmiljø.
Kontakt Kraer erhvervsmægler for nærmere information på tlf. 33 11 25 11.
Afstande:

Bus: 0,2 km.

Tog: 0,9 km.

S-tog: 0,9 km.

Metro: 0,7 km.