Logistisk velplaceret lejemål på 255 m² - velegnet til lager, engros, showroom eller lignende
Gode parkeringsforhold og let adgang til Ring 2, Hillerødmotorvejen og offentlige transportmuligheder
Meget regulært lejemål på 255 m² med en logistisk perfekt placering. Her får man en synlig beliggenhed samtidig med gode parkeringsforhold, let adgang til Ring 2 og Hillerødmotorvejen samt kort afstand til metro.
Lejemålet er særdeles velegnet til mange formål, herunder lager, showroom, engros, click & collect shop og lignende.
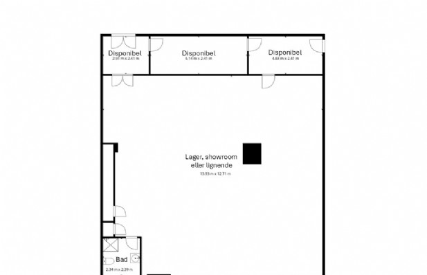
Der er niveaufri adgang til lejemålet via rulleport, hvor lejemålet indeholder ét stort regulært rum med god loftshøjde og fornuftigt lysindfald fra de 4 vinduespartier. Derudover indeholder lejemålet 3 baglokaler, hvor der let kan etableres tekøkken i det ene samt toilet med bad.
På ejendommen er der gode parkeringsforhold med mulighed for faste parkeringspladser efter nærmere aftale.
Let adgang til Ring 2 og Hillerødmotorvejen, som begge nås indenfor for få minutter. Derudover gode offentlige transportmuligheder med busser lige ved døren, 400 meter til Metroen ved Nuuks Plads, 700 meter til Aksel Møllers Have og 950 meter til Nørrebro Station såvel som Nørrebros Runddel.
Kontakt Kraer erhvervsmægler for nærmere information på tlf. 33 11 25 11.
Afstande:

Bus: 0,1 km.

Metro: 0,4 km.

Motorvej: 3,5 km.