310 m² momsfrit og særdeles attraktivt butikslejemål med synlig eksponering
Nu udbydes yderst repræsentativt butikslejemål midt på Søborg Hovedgades handelsstrøg
Beliggenheden er særdeles attraktiv med gode parkeringsmuligheder og med stor eksponering fra gaden, hvilket gør lejemålet ideelt til kundeorienteret erhverv.
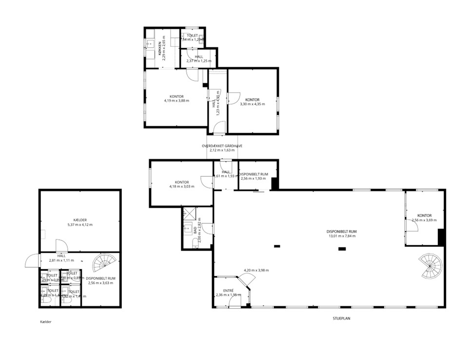
Lejemålet er beliggende i en pæn hjørneejendom og udgør i alt 260 m² i stueplan samt ca. 50 m² højloftet, tør kælder med direkte intern adgang.
Indretningen er funktionel og fleksibel og indeholder:
• Indbydende vindfang
• Stort, lyst butikslokale med mange anvendelsesmuligheder
• 4 gode kontorer / mødelokale
• Kantine / spisestue i åben forbindelse med et lyst køkken
• 4 toiletter, heraf ét med brusefaciliteter
Lejemålet fremstår lyst og præsentabelt med fremhævet indgangsparti i travertin, samt pæne vinduespartier, som sikrer et behageligt lysindfald og god synlighed fra gaden. Der er desuden installeret ventilationsanlæg, som bidrager til et godt indeklima.
Fra lejemålet er der adgang til et hyggeligt gårdmiljø, som kan benyttes af medarbejdere.
Lejemålet har tidligere huset bl.a. bankfilial, skotøjsforretning og senest fysioterapi.
Kontakt Kraer erhvervsmægler for nærmere information på tlf. 33 11 25 11.
Afstande:

Bus: 0,1 km.

S-tog: 1,0 km.